Rustico in vendita

Seregno, Via Luigi Cagnola
€ 555.000
6 locali 6 locali
700 Mq 700 Mq
3 bagni 3 bagni

Rustico in vendita

Seregno, Via Luigi Cagnola

Descrizione annuncio

In posizione strategica, comoda a tutti i principali servizi e collegamenti, proponiamo affascinante intera corte da personalizzare, immersa in un contesto tranquillo e riservato, senza spese condominiali.

Una soluzione dal grande potenziale, che si sviluppa su due piani e regala spazi ampi e ben distribuiti, ideali per dare forma alla casa che hai sempre immaginato.
All’esterno, un giardino generoso accoglie momenti di relax, giochi all’aria aperta e convivialità.

Il vero valore aggiunto è il terrazzo, uno spazio da vivere in ogni stagione, perfetto per cene estive, colazioni al sole o semplicemente per ritagliarsi un angolo di quiete.

Un’opportunità unica per chi desidera ristrutturare e personalizzare ogni dettaglio, creando un’abitazione su misura, con possibilità di posto auto.

Soluzione ideale per famiglie in cerca di indipendenza e tranquillità o per chi valuta un investimento dal sicuro potenziale.

Mostra tutto

Nelle vicinanze

Trasporto pubblico Trasporto pubblico
stazione di Seregno
stazione di Seregno
1,5 Km
Z231/Z232/Z233 - Briantina-fr ITC Bassi/Levi
Z231/Z232/Z233 - Briantina-fr ITC Bassi/Levi
440 m
Z231/Z232 - SEREGNO Matteotti fr.213
Z231/Z232 - SEREGNO Matteotti fr.213
470 m
Ricariche auto elettriche Ricariche auto elettriche
In's Mercato
670 m
Krealpool SRL
2,6 Km
Piazza Grandi
2,9 Km
Scuole Scuole
Scuola secondaria di secondo grado paritaria "Istituto Paci"
210 m
Scuola media statale L. Don Milani
290 m
Istituto Tecnico Commerciale e per Geometri Primo Levi
310 m
Istituto di Istruzione Superiore Martino Bassi
460 m
Scuola Primaria Luigi Cadorna
650 m
Farmacia Farmacia
Farmacia
300 m
Farmacia Santagostino
930 m
Farmacia Gilardelli
1,0 Km
Beretta Emanuele
1,0 Km
Parafarmacia Colombo
1,1 Km
Ospedali Ospedali
Ospedale Trabattoni e Ronzoni
790 m
policlinico di Monza
2,3 Km
Dedalo Psicologia
2,5 Km
Bianalisi s.r.l. Analisi Mediche
2,6 Km
Ospedali
2,9 Km
Supermercati Supermercati
Simply
960 m
Simply Market
1,2 Km
Iperal
1,3 Km
Esselunga
1,4 Km
Supermercati U2
1,6 Km
Negozi Negozi
Dell'Orto Gianpaolo
340 m
Dell'Orto Gianpaolo tessuti
340 m
Corti
410 m
Antico forno
510 m
Passa che ti passa
660 m
Bar Bar
Pacha'
380 m
Bar 13
450 m
Kiss Kiss Cafè
730 m
Torricelli 10
860 m
MOLTO Club & Restaurant
880 m
Ristoranti Ristoranti
Mystic Pizza
210 m
Ristorante Mediterraneo
730 m
Bier Himmel
750 m
Il Capriccio 2
790 m
La Botte pizzeria e birreria
810 m
Mostra tutto

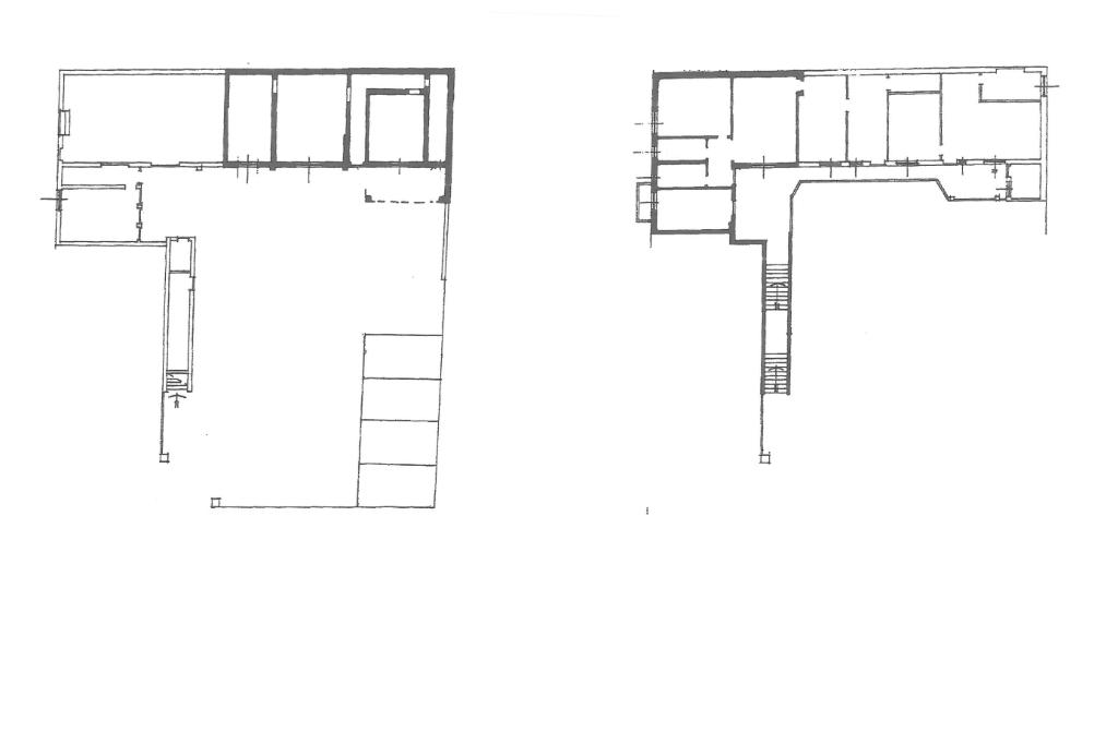
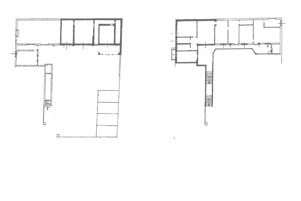
Caratteristiche

Rif.:
61175505
Piano:
Su più livelli di 1
Totale piani:
1
Posti auto:
2
Balconi:
1
Terrazzi:
1
Mostra tutto
Prezzo Prezzo
€ 555.000
Rata mutuo Rata mutuo
€ 2.634 / mese
Spese annue Spese annue
€ 0
Proponi il tuo prezzoProponi il tuo prezzo

Altre caratteristiche

Descrizione dei locali
Bagno Con Finestra

Classe Energetica

Questo immobile è esente da classe energetica
Anno di costruzione:
1960
Riscaldamento:
Autonomo
Tipo impianto:
A radiatori
Tipo alimentazione:
Altro

Ti interessa visionare l'immobile?

Fissa un appuntamento  Fissa un appuntamento

Richiedi informazioni

Clicca su Leggi per aprire l'informativa
* Questi campi sono obbligatori

Calcola il tuo mutuo

Semplice e senza impegno
Anticipo

( % )
Mutuo

( % )

pochi semplici passi

inserisci i tuoi dati
Questionario completato
Grazie per aver richiesto un appuntamento senza impegno con un nostro Consulente del Credito e Assicurativo.

Hai inserito correttamente tutti i dati necessari e a breve riceverai una e-mail con un link da convalidare per inviare i tuoi dati.
Affiliato
Studio Delfino Srl
Corso Matteotti, 156 20831 Seregno (MB)
Corso Matteotti, 156 20831 Seregno (MB)
Zona: Seregno 2
Mostra su mappa
Orari: Lunedì a Venerdì 9.00-13.00 15.00-19.30 Sabato 9.00-15.30
Affiliato
Studio Delfino Srl
Corso Matteotti, 156 20831 Seregno (MB)

2026 Tecnocasa Franchising S.p.A. - P. IVA 08365160152 - Via Monte Bianco 60/A 20089 Rozzano (MI). Ogni agenzia ha un proprio titolare ed è autonoma. Privacy policy | Policy utilizzo | Cookie policy