Casa semindipendente in vendita

Seregno, Via Raffaello Sanzio
€ 61.000
2 locali 2 locali
40 Mq 40 Mq
1 bagno 1 bagno

Casa semindipendente in vendita

Seregno, Via Raffaello Sanzio

Descrizione annuncio

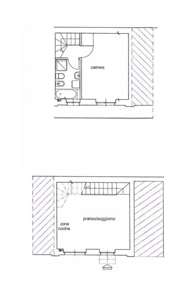
In zona centrale, all'interno di un contesto di corte privo di spese condominiali, proponiamo una casa semi indipendente disposta su tre livelli: piano terra, primo piano e sottotetto.

L’immobile è completamente da ristrutturare e offre interessanti possibilità di trasformazione. In particolare, è possibile realizzare soluzioni abitative distinte:

Un monolocale al piano terra, ideale come investimento o per uso indipendente;

Un bilocale o trilocale distribuito tra il primo piano e il sottotetto, con la possibilità di recuperare un ulteriore locale mediante l’alzamento del tetto.
Un'unica soluzione di tre o quattro locali tra il piano terra, il primo piano e il sottotetto,
La proprietà rappresenta un'ottima opportunità per chi desidera personalizzare la propria abitazione o creare una doppia soluzione in una zona comoda, centrale e senza spese condominiali.

Mostra tutto

Nelle vicinanze

Trasporto pubblico Trasporto pubblico
stazione di Seregno
stazione di Seregno
590 m
Via Da Seregno - Corso Matteotti (Seregno)
Via Da Seregno - Corso Matteotti (Seregno)
170 m
Z228/Z231/Z232 - SEREGNO Matteotti 33/p.za Risorgimento
Z228/Z231/Z232 - SEREGNO Matteotti 33/p.za Risorgimento
180 m
Ricariche auto elettriche Ricariche auto elettriche
In's Mercato
1,4 Km
U2 Supermercato Meda | EnelX
2,9 Km
Scuole Scuole
Scuola Primaria Luigi Cadorna
410 m
Scuola secondaria di secondo grado paritaria "Istituto Paci"
910 m
Liceo Linguistico "Candia"
960 m
Scuola parrocchiale paritaria S. Ambrogio (scuola dell'infanzia R. G. Mariani, scuola prima e secondaria di primo grado S. Ambrogio)
970 m
Scuola media statale L. Don Milani
1,1 Km
Farmacia Farmacia
Beretta Emanuele
330 m
Farmacia Gilardelli
430 m
Farmacia Bizzozero
430 m
Parafarmacia Colombo
590 m
Farmacia Santagostino
660 m
Ospedali Ospedali
Ospedale Trabattoni e Ronzoni
790 m
Ospedale di Desio
2,6 Km
Dedalo Psicologia
3,0 Km
Supermercati Supermercati
Simply Market
160 m
Simply
560 m
Naturasì
1,0 Km
MD Market Seregno
1,1 Km
Iperal
1,2 Km
Negozi Negozi
Viganò
130 m
Il Corso
170 m
Daruma
300 m
Chiara M.
340 m
Brenna Market
340 m
Bar Bar
Speakeasy
340 m
Bar Moon
350 m
La vipera pazza
420 m
Doctor Jazz
460 m
Davis
480 m
Ristoranti Ristoranti
Pizzexport
70 m
Macellerie
90 m
Osteria Marinara
110 m
Igloos
180 m
Bier Himmel
310 m
Mostra tutto

Caratteristiche

Rif.:
61088314
Piano:
Su più livelli di 2
Totale piani:
2
Balconi:
1
Camere da letto:
2
Arredamento:
Assente
Mostra tutto
Prezzo Prezzo
€ 61.000
Rata mutuo Rata mutuo
€ 287 / mese
Spese annue Spese annue
€ 0
Proponi il tuo prezzoProponi il tuo prezzo

Classe Energetica

G
G
G
G
G
G
G
G
G
EP globale non rinnovabile:
160.00 kW h/m² anno
EP globale rinnovabile:
160.00 kW h/m² anno
EP invernale del fabbricato:
EP estiva del fabbricato:
Anno di costruzione:
1950
Riscaldamento:
Assente

Ti interessa visionare l'immobile?

Fissa un appuntamento  Fissa un appuntamento

Richiedi informazioni

Clicca su Leggi per aprire l'informativa
* Questi campi sono obbligatori

Calcola il tuo mutuo

Semplice e senza impegno
Anticipo

( % )
Mutuo

( % )

pochi semplici passi

inserisci i tuoi dati
Questionario completato
Grazie per aver richiesto un appuntamento senza impegno con un nostro Consulente del Credito e Assicurativo.

Hai inserito correttamente tutti i dati necessari e a breve riceverai una e-mail con un link da convalidare per inviare i tuoi dati.
Affiliato
Studio Delfino Srl
Corso Matteotti, 156 20831 Seregno (MB)
Corso Matteotti, 156 20831 Seregno (MB)
Zona: Seregno 2
Mostra su mappa
Orari: Lunedì a Venerdì 9.00-13.00 15.00-19.30 Sabato 9.00-15.30
Affiliato
Studio Delfino Srl
Corso Matteotti, 156 20831 Seregno (MB)

2026 Tecnocasa Franchising S.p.A. - P. IVA 08365160152 - Via Monte Bianco 60/A 20089 Rozzano (MI). Ogni agenzia ha un proprio titolare ed è autonoma. Privacy policy | Policy utilizzo | Cookie policy