Quadrilocale in vendita

Seregno, Via Valassina
€ 299.000
4 locali 4 locali
120 Mq 120 Mq
2 bagni 2 bagni

Quadrilocale in vendita

Seregno, Via Valassina

Descrizione annuncio

RIF.60906381–

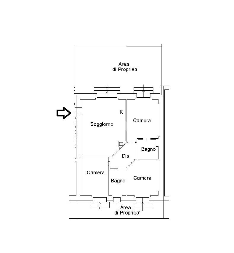
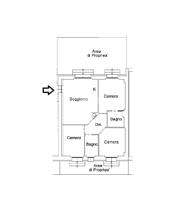
In una zona comoda e ben servita, con facile accesso a tutti i principali servizi, proponiamo in vendita un appartamento di nuova costruzione, situato al piano terra e dotato di un giardino privato. L'immobile si compone di un ampio soggiorno cucina, disimpegno, tre spaziose camere da letto e doppi servizi, offrendo un'ottima distribuzione degli spazi e comfort per tutta la famiglia.

L’appartamento è realizzato con soluzioni moderne e all'avanguardia, con un'attenzione particolare al risparmio energetico. È dotato di una classe energetica A4, che garantisce un elevato isolamento termico e il massimo del comfort abitativo. Tra le principali caratteristiche, l'immobile è fornito di una pompa di calore per garantire un clima ideale in ogni stagione, un impianto fotovoltaico per la produzione di energia rinnovabile, riscaldamento a pavimento, che assicura una distribuzione uniforme del calore, e predisposizione per l’installazione di impianto di aria condizionata.

Inoltre, è disponibile un posto auto coperto al costo di € 10.000, che offre ulteriore comodità. L'appartamento offre anche la possibilità di personalizzare le finiture interne, con una vasta gamma di opzioni, in modo da adattarlo al proprio gusto e alle proprie esigenze. Questa è una proposta ideale per chi cerca una casa nuova, efficiente e funzionale, in una posizione strategica, pronta per essere abitata.

Completa la soluzione la Cantina.


Mostra tutto

Nelle vicinanze

Trasporto pubblico Trasporto pubblico
stazione di Seregno
stazione di Seregno
1,5 Km
Z233 - SEREGNO Parini 43/Prealpi
Z233 - SEREGNO Parini 43/Prealpi
390 m
Z233 - SEREGNO Verdi fr.57-Parini
Z233 - SEREGNO Verdi fr.57-Parini
440 m
Ricariche auto elettriche Ricariche auto elettriche
In's Mercato
70 m
Krealpool SRL
2,2 Km
U2 Supermercato Meda | EnelX
2,5 Km
Scuole Scuole
Centro di formazione
310 m
Centro di Formazione Professionale Pertini
350 m
Collegio Ballerini
370 m
Scuola media statale L. Don Milani
410 m
Istituto Comprensivo Antonio Stoppani
430 m
Farmacia Farmacia
Farmacia
530 m
Farmacia Santagostino
830 m
Farmacia Malesani-Molica
970 m
Farmacia Masera
1,0 Km
Parafarmacia Colombo
1,1 Km
Ospedali Ospedali
Ospedale Trabattoni e Ronzoni
630 m
policlinico di Monza
2,2 Km
Bianalisi s.r.l. Analisi Mediche
2,8 Km
Supermercati Supermercati
Iperal
620 m
Simply
930 m
Supermercati U2
980 m
Simply Market
1,4 Km
Eurospin
1,8 Km
Negozi Negozi
Dell'Orto Gianpaolo tessuti
440 m
Corti
450 m
Baby fashion
510 m
Dell'Orto Gianpaolo
530 m
Angelo Losa
540 m
Bar Bar
Bar 13
430 m
Pacha'
470 m
Caffè del giglio
490 m
Torricelli 10
580 m
Davis
970 m
Ristoranti Ristoranti
La bottega della pizza
570 m
AMO - Trattoria di mare
630 m
Mystic Pizza
680 m
Pizza-Pazza pizzeria d'asporto
750 m
L'Osteria dei Vitelloni
960 m
Mostra tutto

Caratteristiche

Rif.:
60906381
Piano:
Terra di 2 con ascensore
Totale piani:
2
Posti auto:
1
Camere da letto:
3
Arredamento:
Assente
Mostra tutto
Prezzo Prezzo
€ 299.000
Rata mutuo Rata mutuo
€ 1.411 / mese
Spese annue Spese annue
€ 1
Proponi il tuo prezzoProponi il tuo prezzo

Classe Energetica

A4
A4
A4
A4
A4
A4
A4
A4
A4
EP globale non rinnovabile:
15.00 kW h/m² anno
EP globale rinnovabile:
15.00 kW h/m² anno
EP invernale del fabbricato:
EP estiva del fabbricato:
Anno di costruzione:
2025
Riscaldamento:
Autonomo
Tipo impianto:
A pavimento
Tipo alimentazione:
Pannelli

Ti interessa visionare l'immobile?

Fissa un appuntamento  Fissa un appuntamento

Richiedi informazioni

Clicca su Leggi per aprire l'informativa
* Questi campi sono obbligatori

Calcola il tuo mutuo

Semplice e senza impegno
Anticipo

( % )
Mutuo

( % )

pochi semplici passi

inserisci i tuoi dati
Questionario completato
Grazie per aver richiesto un appuntamento senza impegno con un nostro Consulente del Credito e Assicurativo.

Hai inserito correttamente tutti i dati necessari e a breve riceverai una e-mail con un link da convalidare per inviare i tuoi dati.
Affiliato
Studio Delfino Srl
Corso Matteotti, 156 20831 Seregno (MB)
Corso Matteotti, 156 20831 Seregno (MB)
Zona: Seregno 2
Mostra su mappa
Orari: Lunedì a Venerdì 9.00-13.00 15.00-19.30 Sabato 9.00-15.30
Affiliato
Studio Delfino Srl
Corso Matteotti, 156 20831 Seregno (MB)

2026 Tecnocasa Franchising S.p.A. - P. IVA 08365160152 - Via Monte Bianco 60/A 20089 Rozzano (MI). Ogni agenzia ha un proprio titolare ed è autonoma. Privacy policy | Policy utilizzo | Cookie policy